Our Services

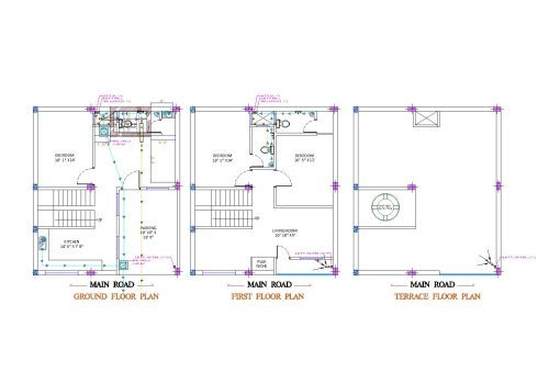
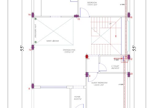
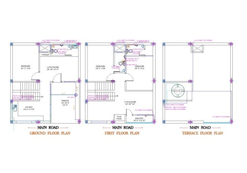
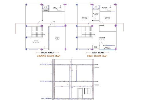
2D Floor Plan

Our detailed 2D floor plans give you a clear visual layout of your space, helping you understand flow, function, and design. Each plan is customized to suit your lifestyle, ensuring smart, efficient use of every square foot.

3D elevation

A realistic 3D view of your building’s exterior design. Gives a clear visual of how the final structure will look.

Structure Drawings

These drawings detail the building’s structural framework—columns, beams, and foundations. They ensure safety, stability, and compliance with engineering standards.

Working & Electrical

Our working and electrical drawings guide construction and installation with accuracy.They include power layouts, lighting plans, and all technical details needed on-site.

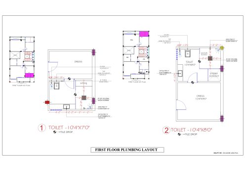
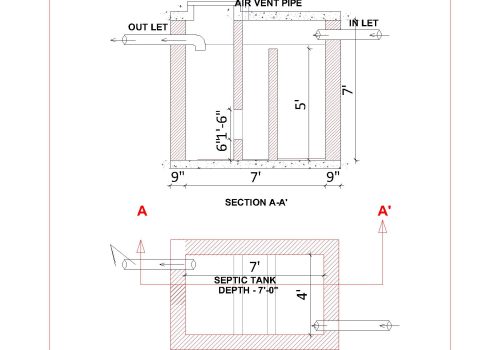
Plumbing & Drainage

These drawings map out water supply, drainage lines, and fixture placement.They ensure smooth, efficient plumbing systems that meet all functional requirements.

Landscape design

We design outdoor spaces that complement your architecture and lifestyle. From garden layouts to hardscape elements, every detail is thoughtfully planned.

3D Interior

Experience your space before it’s built with realistic 3D interior views.From materials to lighting, we bring your vision to life with immersive detail.

2D elevation

Our 2D elevation drawings showcase the exterior look of your building with precise details. They help visualize height, proportions, and architectural style from every angle.

2D interior

Our 2D interior layouts focus on room arrangement, furniture placement, and flow. They provide a clear plan to make your spaces functional and stylish.

3D cut section

The 3D cut section offers a cross-sectional view of your building. It reveals internal layers and design elements, helping you visualize structure and layout in depth.